This is the first of the responses I had to write for my seminar class this semester. It is based off a reading by Colomina from the book “Privacy and Publicity” specifically a chapter about interiors, which I know you haven’t read. More important to this assignment was my teachers’ desires for an example of either a plan or section based building. You got extra points (figuratively, it’s a pass/fail assignment) for mixing the two assignments. Since I’m kind of an overachiever, mixed with my love of any excuse to theorize and indulge in archibabble, I did both. This is my edited version, where I respond to my teacher’s comments, most notably his argument that I can’t say that it’s unlikely anyone would try to elminate privacy, when people actually have tried. He also made some interesting final points that would require a lot more thought, and would completely change this essay, so I haven’t dealt with them yet. But I will eventually try to. Anyways, here it is.
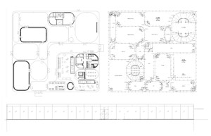
The Glass Pavilion at the Toledo Museum of Art by the firm SANAA is the most plan-y piece of architecture I can think of. Its walls are nothing but thin transparent glass. A section of the building reads as a series of thin lines holding up a floating thick bar above the flat ground plane. Only when you begin to diagram the plan, to add poche to the uninhabitable spaces, do you begin to understand the section as a section. Instead, this building is designed in plan as a series of round edged rectangles, which are shaped by the poche. But where several centuries before that poche would have been thick masonry walls, SANNA instead defines the spaces with thin glass walls enclose…nothing. What was once solid is now void. The wall is carved to its limit, but the space where wall once was is not then filled with more program but with air, which acts as a insulation for the building. “Wall” as a thick, opaque, filled solid is made obsolete.
With this change is possibly an idea about a complete elimination of privacy. Admittedly a few rooms of the Pavilion are made with opaque walls according to programatic needs, but in general as one passes through the museum one is always able to be seen, and to be seen. At times, like Loos’s swimming pool for Josephine Baker, the reflections cause the inhabitant’s to be unsure if they are viewed. But unlike in Loos’s building, there is no privileged window view for the voyeur, no private theater box from which to see and control.* Here everyone is in view at all times, reflections in the glass that obstruct views change as the parties move and as the sun moves, giving no one control.1 This is theater in the round; everyone can see everything.
The possibility that such an elimination of privacy will be widely applied to housing is something I find unlikely. The obvious exception to this argument is the Farnsworth House, built in 1951 by Mies van der Rohe. However, twenty years of exposure in her glass house sent Edith Farnsworth fleeing to Italy to fade into invisibility.2 And while we are a very different culture now than we were sixty years ago, I don’t think we’ve removed that need for privacy. On the contrary, it may be even more important, given society’s more liberal view of the activities of unmarried professional woman. The unenclosed bedroom Mies designed assumed that unmarried Edith wouldn’t need privacy there because she was never going to have sex.** I think it fairly assumable that these days a woman would certainly need and want privacy in a bedroom (except maybe for some exhibitionists). It is unlikely to become popular to build all glass houses, because as we are now, most people could not handle such an abrupt shift to total and unending exposure.
With that said, I am part of a new generation, one that quite happily facebooks and tweets about every little thought that crosses our minds. Hardly anything is to personal to share, even with people we’ve met only once. With such an exposure of our minds quickly becoming second nature, maybe it is not so unlikely that soon no one would think twice about total exposure of our bodies and possessions through thin glass walls. Just a thought.
*Colomina, Privacy and Publicity. Also I am presuming here that there are no attempts to cause special reflective moments, due to any lack of shading or sun deflecting devices besides the roof.
** Alice Firedman, Women and the Making of the Modern World
***Drawings from Kiel Moe’s Integrated Design in Contemporary Architecture
